
Plansrow provides precise 2D as-built drawings to support architecture, engineering, and construction workflows. Using advanced 3D laser scanning, we capture structural, architectural, and MEP system dimensions with accuracy typically ranging from 2–4 mm, ensuring highly reliable field documentation.
Our Mapping and Modeling team converts point cloud data into clean, organized 2D CAD drawings and, when needed, can also produce detailed 3D BIM models for coordination, planning, and virtual design environments. With accurate measurements, clear drawing standards, and dependable model geometry, you gain confidence in decision-making while reducing costly rework and uncertainty.
Plansrow’s as-built drawings help you:




2D drawings provide an accurate visual representation of a building or project layout, including measurements, geometry, and technical details. They serve as a foundational communication tool between design, engineering, and construction teams throughout the project lifecycle.
With a reliable base drawing, clients can layer in updates such as revised layouts, design changes, structural adjustments, or mechanical system components. Additional details like dimensions, text notes, callouts, leaders, and tables can be added to clearly communicate intent or highlight areas requiring coordination.
These engineering-grade drawings also establish tolerances for key dimensions, ensuring alignment with project specifications, regulatory requirements, and industry standards. As a result, 2D drawings remain essential for decision-making, coordination, and accurate execution in the field.
See Our Work
Partner with our expert team using advanced 3D laser scanning technology for project success.
Partner with our expert team using advanced 3D laser scanning technology for project success.
A site plan (also known as a plot plan) is a graphic representation of existing site conditions. It includes the full layout of the property showing buildings, paving, utilities, landscape features, access points, and terrain captured in one clear and accurate depiction.
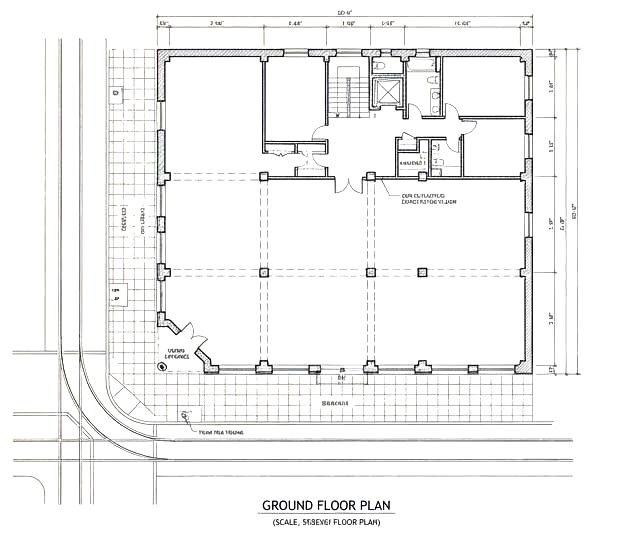
Floor plans illustrate the spatial layout of rooms, circulation paths, walls, doors, windows, and fixed elements. These drawings are commonly used during design review, retrofit planning, and construction coordination.
Interior elevation drawings display interior wall surfaces from a straight-on viewpoint. They show the placement and dimensions of finishes, doors, windows, millwork, fixtures, and other key interior elements.
Exterior elevation drawings document a building’s façade and exterior conditions. They clearly show the outline, massing, and placement of exterior features such as doors, windows, floor levels, and architectural elements helping design teams understand alignment and relationships between building components.
Sections provide a cut-through viewpoint of the building to reveal structural and interior relationships that are not visible in plans or elevations. These drawings help teams understand vertical connections, material layering, and spatial organization.
Detail drawings zoom in on specific elements such as assemblies, connections, or specialty components to provide greater clarity on dimensioning, materials, and construction requirements.
Isometric drawings present a 3D object in a 2D format by representing each axis at a consistent angle, typically 30 degrees. This creates the illusion of depth, helping teams visualize complex spaces, assemblies, or components more intuitively.
These drawings capture building systems including mechanical, electrical, plumbing, and HVAC layouts. They are essential for coordination, renovation planning, and system verification.
RCPs show ceiling features such as height variations, lighting layouts, ventilation grilles, sprinkler heads, and other overhead components mirrored as if viewed in a reflective surface.

With precise as-built drawings generated from our laser scan data, your team can plan renovations and construction with confidence, minimizing change orders, delays, and unnecessary costs.
See Our WorkGain a reliable snapshot of your building’s actual conditions, including changes made over time. This ensures your team always works from an accurate, trusted source of truth.
Our high-accuracy scans capture real-world dimensions and layouts with precision. Your design and construction teams can make confident decisions without relying on outdated or assumed information.
Up-to-date documentation helps you anticipate issues, plan upgrades, and schedule work more efficiently. Clear information reduces uncertainty and supports smoother renovation and maintenance workflows.
Starting with precise as-built data significantly reduces design errors and field conflicts. Fewer surprises in the field means fewer change orders and less rework.
When every stakeholder works from the same accurate information, collaboration improves naturally. This helps speed up decisions and keeps the entire project moving in sync.
Provide owners and facility teams with accurate, dependable records for handover and compliance. Updated as-builts help meet regulatory requirements and support long-term facility management.
We tailor deliverables to your project type, software, and level of detail.
Reflected Ceiling Plans (RCP) – ceiling heights, soffits, lighting, diffusers
Building Sections & Profiles – vertical relationships, roof structure, floor elevations
Roof Plans – slopes, drains, mechanical equipment
Site Plans – landscape, curbs, utilities, sidewalks (if requested)
Exterior Elevations – materials, openings, heights, architectural elements
Floor Plans – walls, doors, windows, partitions, structural elements
MEP/VAV/Fan Coil layouts
Fire Protection as-builts
Structural framing plans
Equipment locations & verification
Finish schedules and room data
Scan to BIM (Revit/Archicad models)
We tailor deliverables to your project type, software, and level of detail.

Get a digital record for future renovations, tenant improvements, or expansions.
.webp)
Clean linework optimized for architects and engineers
.webp)
Fast turnaround (you already have a reputation for fast delivery)
.webp)
Single vendor for 3D scanning + as-builts + BIM.

Design Builds & Remodels

Education

Retail & Restaurant Construction

Water & Sewer

Engineering & Surveying

Civil, Road & Bridge

Power Transmission & Distribution

Telecom

Oil & Gas

Power Generation

Facilities

Electric Vehicle Charging

One Call

Environmental
Find answers to commonly asked questions about our 3D laser scanning services.
They are derived from point cloud data with millimeter-grade accuracy. Far more reliable than conventional measurement workflows.
Most commercial projects are completed within days, not weeks depending on building size and model detail.
Yes. We offer full Scan-To-BIM services at any LOD (200–400).
Yes. We service all California cities Fresno, Clovis, Bay Area, Los Angeles, Sacramento, and more.
Yes. We work on projects across multiple states. Plansrow has operational hubs in multiple regions, allowing our team to mobilize quickly. If your project is awarded to us, we can be set up and fully deployed on-site within two business days, anywhere in the U.S.