Highlights

Client

Orloff Jewelers

Categories

3D Laser Scannning, As Built Plans

Client

No items found.

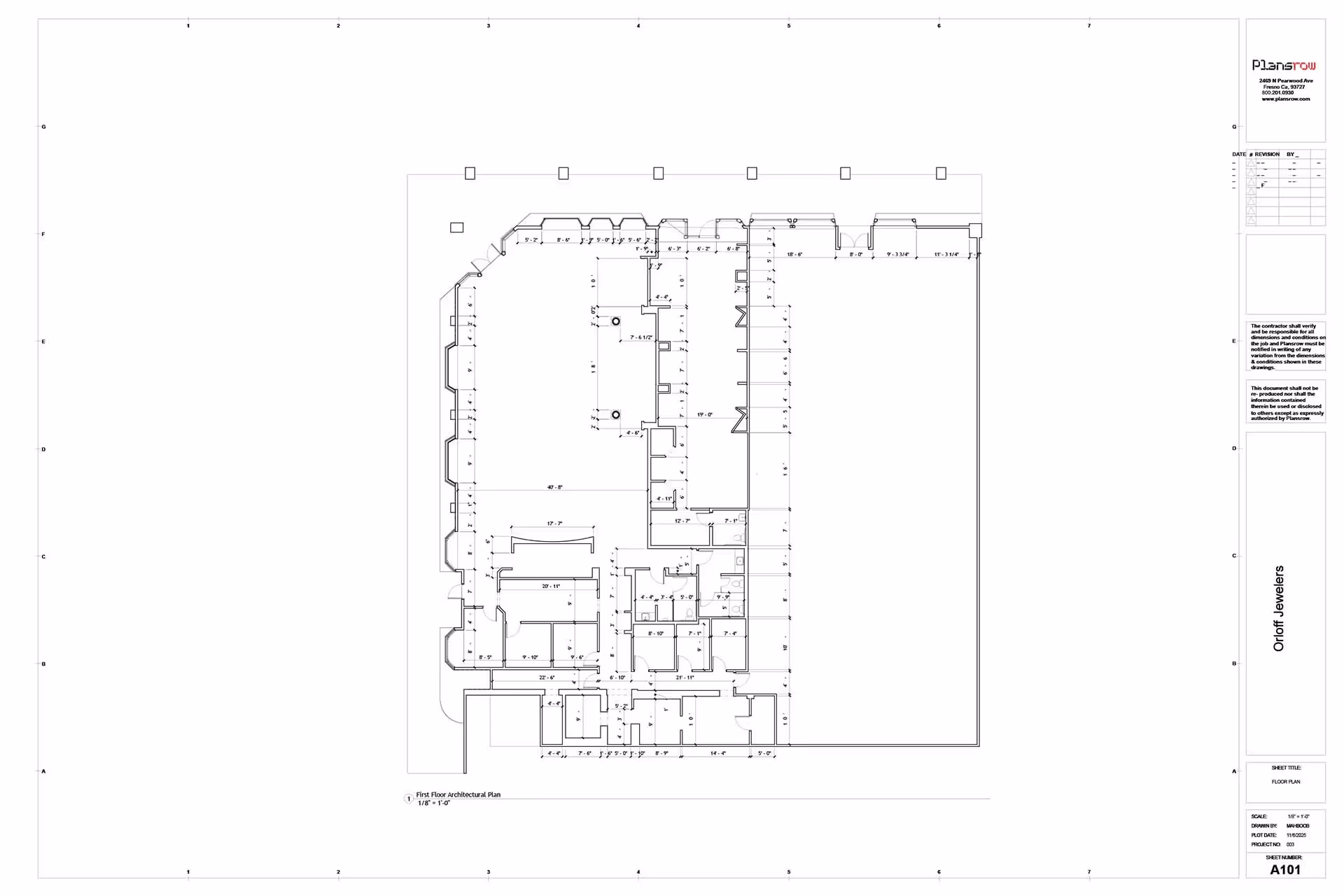
Orloff required accurate existing conditions documentation to support renovation planning and future design work. The facility had limited or outdated drawings, creating uncertainty around dimensions, layouts, and structural conditions. Relying on manual field measurements would have increased risk, extended schedules, and potentially introduced costly errors during design and construction.

Plansrow conducted comprehensive 3D laser scanning of the facility to capture precise, field-verified existing conditions. Using high-resolution point cloud data, we produced accurate architectural As-Built documentation that reflects the building’s true geometry and layout. All data was organized and delivered in formats compatible with the design team’s workflows, providing a reliable foundation for planning and coordination.

The Orloff team gained a single, accurate source of truth for the facility, eliminating guesswork and reducing the need for repeat site visits. Designers were able to move forward with confidence, streamline coordination, and minimize design revisions. The project benefited from faster decision-making, reduced risk, and a solid digital record ready for future renovations or expansions.

Related Projects

Drafting

Emmanuel Baptist Church – Architectural & Structural Production Support

Read
BIM

Dinuba Roundabout REndering

Read
BIM, DRAFTING

Reeds Turnpike Booster Pump Station – 3D Isometric & BIM

Read

From Our community

Here's what other subscribers had to say about us online.
Extremely responsive, easy to work with, timely with deliverables, and the quality of the work was excellent.
David Pezzini
Senior Project Manager | Gensler
Extremely responsive, easy to work with, timely with deliverables, and the quality of the work was excellent.
David Pezzini
Senior Project Manager | Gensler