What is as-built documentation, and why is it important?
As-built documentation provides accurate data and detailed records of a structure's current condition. This information is crucial for renovations, compliance, and effective engineering solutions, ensuring that any modifications, AI applications, or automated processes rely on precise data.
What services do you offer?
We offer a comprehensive suite of services designed to support precise data capture, intelligent documentation, and production assistance for construction, engineering, and automation projects. Our core services include:
3D Laser Scanning: We utilize advanced laser scanning technology to create highly accurate digital representations (point clouds) of existing structures, capturing every detail with precision.
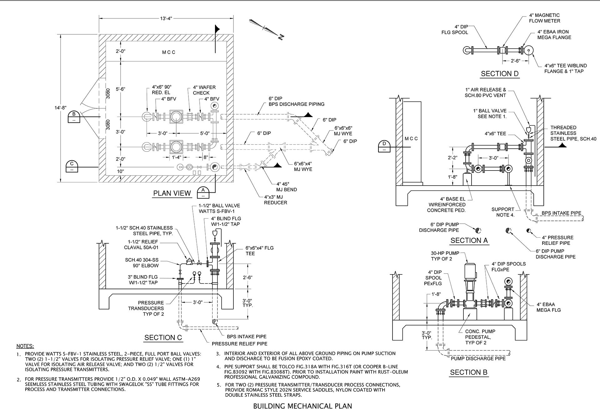
As-Built Documentation: Our as-built documentation services provide an exact record of a building or facility’s current state, ensuring accurate data for renovations, compliance, and maintenance planning.
BIM Modeling: We deliver Building Information Modeling (BIM) services, creating detailed, intelligent 3D models compatible with industry-standard software like Revit and ArchiCAD, which supports seamless project collaboration.
GIS Mapping: For large-scaOur GIS mapping services offer geographic data collection and mapping for large-scale projects, which isle projects, our GIS mapping services offer geographic data collection and mapping, essential for urban planning, land development, and infrastructure projects.
Complete Drafting & Production Support: We provide full drafting and production support for architectural and civil engineering firms, helping to streamline design workflows, increase productivity, and deliver high-quality project documentation.
Virtual Tours & Panoramic Imagery: We offer immersive 360-degree virtual tours and high-resolution imagery that allow stakeholders to remotely explore and understand spaces without being physically present on-site.
AI & Automation Data Integration: Our data is customized to support AI and automation initiatives, enabling predictive maintenance, smart building management, and engineering automation.
How experienced is your team?
Our team brings over 15 years of industry experience, delivering precision-driven data and support for a wide range of projects in construction, architecture, and engineering. With expertise across 3D laser scanning, BIM modeling, GIS mapping, and production support, we have successfully partnered with architects, civil engineers, and developers to meet complex project needs with accuracy and efficiency. Our extensive experience ensures that each project receives the highest standard of service, backed by years of hands-on expertise and industry knowledge.
Who benifit from your service?
Our services cater to a diverse range of professionals and industries, including:
Architects and Engineers: Obtain precise as-built data, BIM models, and GIS mapping to enhance project planning, design accuracy, and documentation while minimizing on-site guesswork.
Civil Engineering Firms: Access complete drafting, production support, and reliable site data to improve project efficiency and resource management.
Developers and Contractors: Use our 3D laser scanning and as-built documentation to reduce errors, avoid costly rework, and stay on schedule.
Facility Managers and Building Owners: Take advantage of accurate documentation and virtual tours for better maintenance planning, compliance, and facility optimization.
Construction Industry: Depend on our utility locating, concrete scanning, and mapping services to enhance project safety and accuracy during construction.
Infrastructure Development: Gain insights into existing site conditions through 3D laser scanning, mapping, and drone imagery, ensuring effective planning and execution for infrastructure projects.
Smart Engineering and AI Projects: Our high-quality data and documentation support automation, predictive maintenance, and smart building management initiatives.
How do I get started?
Getting started with us is straightforward. Here’s what you need to do:
1. Contact Us: Reach out through phone, email, or our website contact form to discuss your project needs. We’ll schedule a consultation to understand your requirements.
2. Initial Consultation: During this conversation, we’ll gather details about your project’s scope, timeline, and specific goals. This helps us tailor our services to meet your expectations.
3. Receive a Custom Proposal: Based on the consultation, we’ll provide a customized proposal that outlines the recommended services, deliverables, timeline, and pricing.
4. Project Kick-Off: Once you approve the proposal, we’ll initiate the project with a clear plan and schedule, keeping you informed at every step.











.avif)



.webp)
