Highlights

Client

SwtichBack Engineering

Categories

Drafting

Client

No items found.

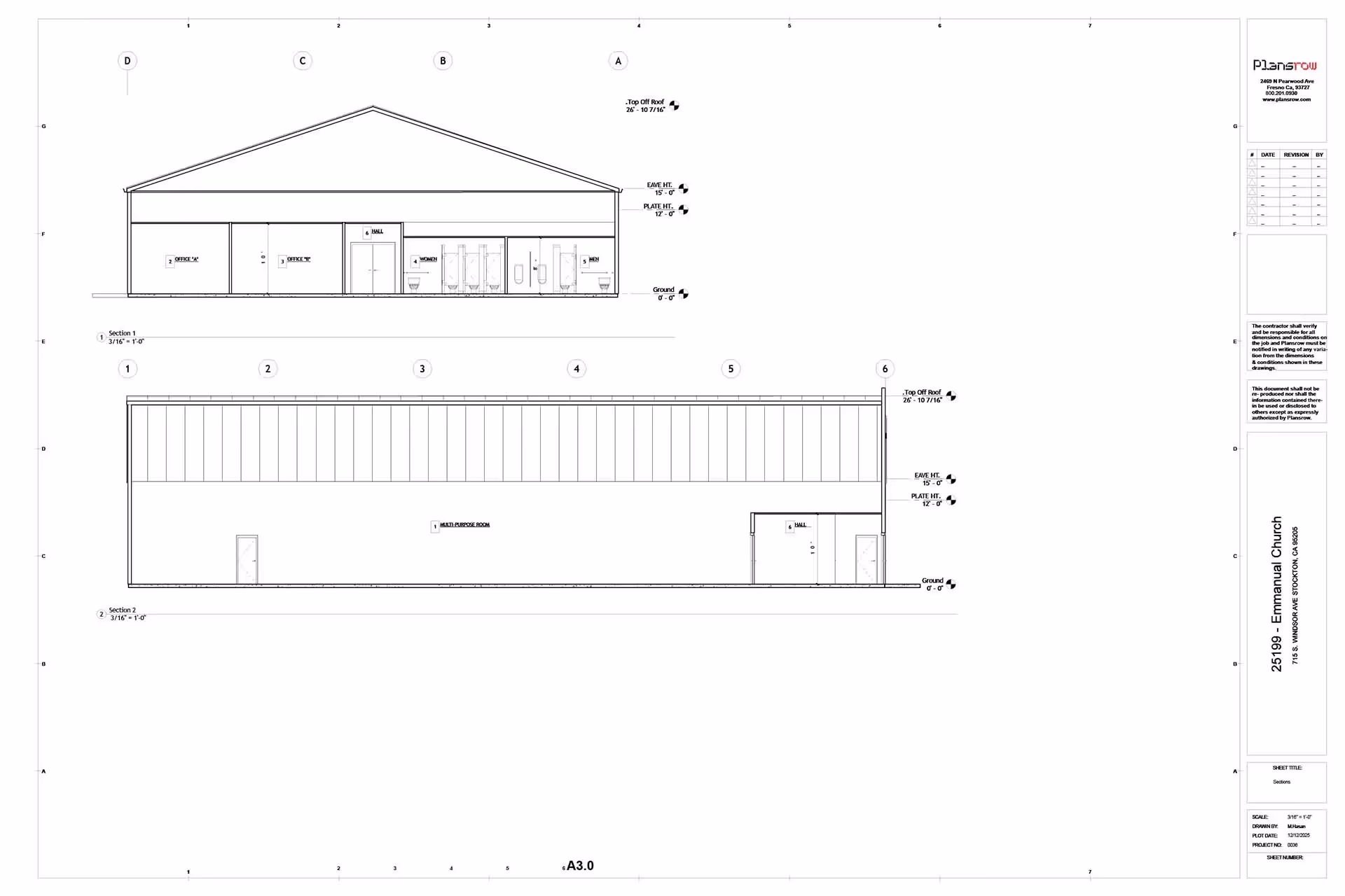
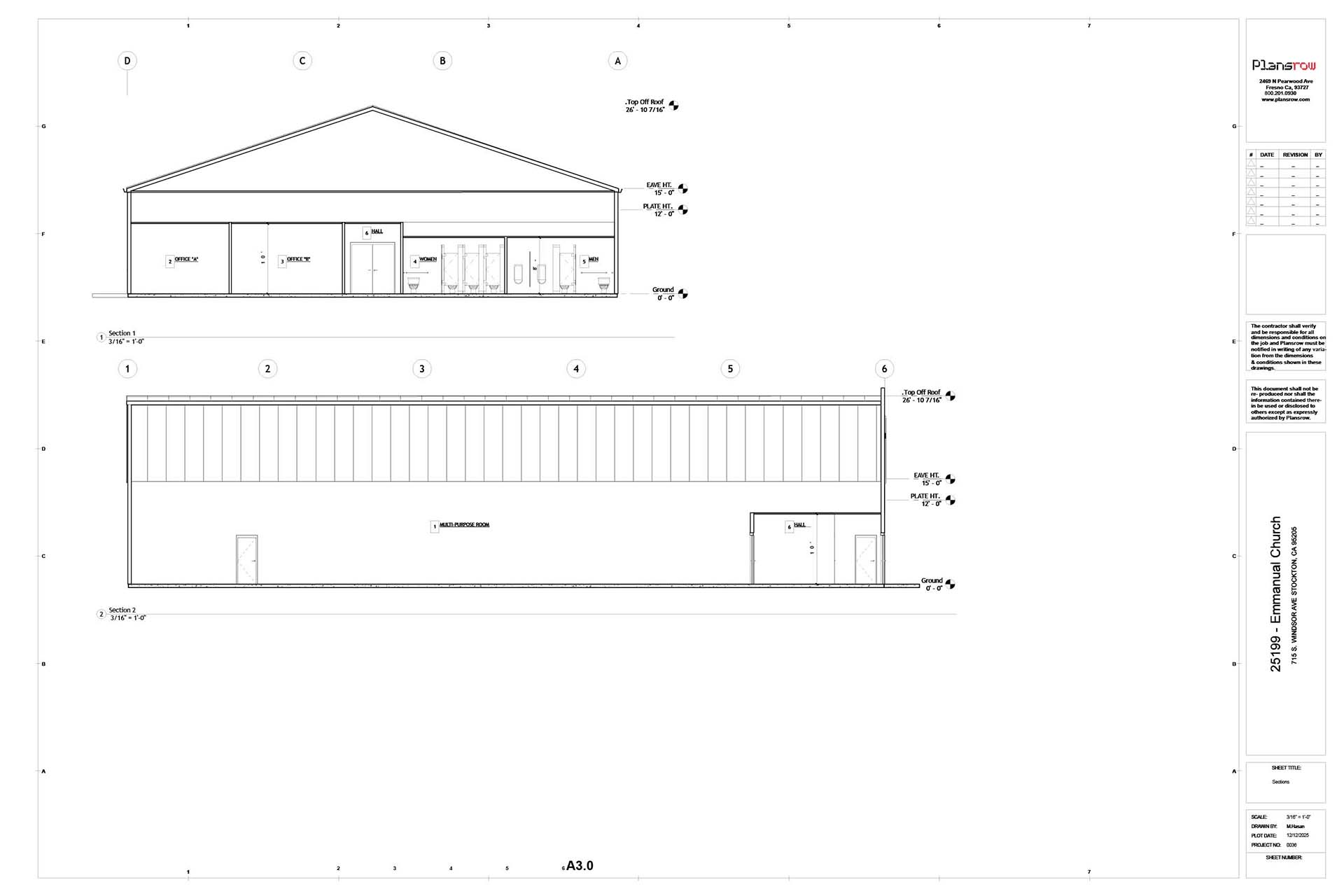
The project involved developing complete architectural and structural plan sets for Emmanuel Baptist Church in Stockton, California while coordinating with multiple stakeholders and consultants. The lead design firm was short staffed and facing production pressure to move the project from early concept through construction documents without delays. Limited internal capacity made it difficult to keep up with drafting, detailing, coordination, and plan set organization while maintaining quality and code compliance.

Plansrow acted as an extension of the client’s design team, providing end to end production support across both architectural and structural scopes. We assisted with floor plans, roof plans, elevations, building sections, occupant load calculations, and coordinated structural layouts. Our team translated conceptual design intent into detailed, permit ready drawings while maintaining close coordination with the structural engineer and other involved consultants. This allowed the lead firm to stay focused on design direction and client communication while we handled production.

By supplementing the client’s team, Plansrow helped accelerate delivery timelines, reduce internal workload, and eliminate the need for additional full time hires. The project progressed smoothly from concept through construction documents with consistent drawing standards and coordinated plan sets. The client benefited from predictable delivery, improved efficiency, and a reliable production partner capable of scaling support as project demands increased.

Related Projects

3D Laser Scannning, As Built Plans

Orloff Jewelers – As-Built Documentation & 3D Laser Scanning

Read
BIM

Dinuba Roundabout REndering

Read
BIM, DRAFTING

Reeds Turnpike Booster Pump Station – 3D Isometric & BIM

Read

From Our community

Here's what other subscribers had to say about us online.
Extremely responsive, easy to work with, timely with deliverables, and the quality of the work was excellent.
David Pezzini
Senior Project Manager | Gensler
Extremely responsive, easy to work with, timely with deliverables, and the quality of the work was excellent.
David Pezzini
Senior Project Manager | Gensler